Trang chủ Toán Học Lớp 8 ai chi e bai nay vs a câu hỏi 2448596...

ai chi e bai nay vs a câu hỏi 2448596 - hoctapsgk.com

Câu hỏi :

ai chi e bai nay vs a

image

Lời giải 1 :

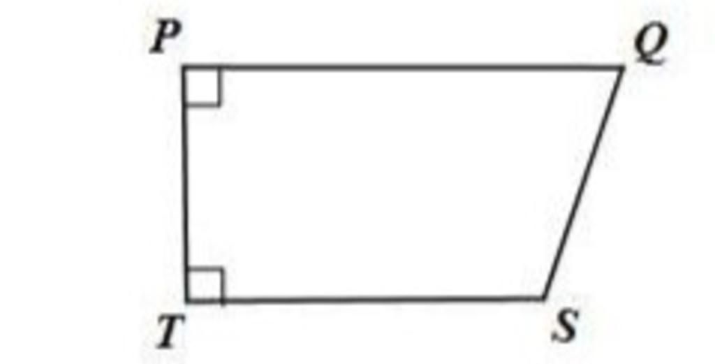
Vì theo tính chất hình tứ giác thì tổng 4 góc là bằng 360 độ

Góc P và góc T cùng là góc vuông nên bằng 90 độ

Ta có:

góc P+góc T+góc Q+góc S=360 độ

Ta thay số: 90độ+90độ+góc Q+góc S=360 độ

Góc Q+góc S=360 độ-90độ-90độ

góc Q+góc S=180 độ

Cho mk xin hay nhất please

Thank you

Thảo luận

Lời giải 2 :

Ta có tổng 4 góc trong 1 tứ giác là $360^o$

P + T + S + Q = $360^o$

Mà P = $90^o$

       T = $90^o$

⇒ P + T = $180^o$

Vậy $360^o$ - $180^o$ = $180^o$

⇒ Ta có Q + S = P + T

Vật Q + S = $180^o$

 

Bạn có biết?

Toán học là môn khoa học nghiên cứu về các số, cấu trúc, không gian và các phép biến đổi. Nói một cách khác, người ta cho rằng đó là môn học về "hình và số". Theo quan điểm chính thống neonics, nó là môn học nghiên cứu về các cấu trúc trừu tượng định nghĩa từ các tiên đề, bằng cách sử dụng luận lý học (lôgic) và ký hiệu toán học. Các quan điểm khác của nó được miêu tả trong triết học toán. Do khả năng ứng dụng rộng rãi trong nhiều khoa học, toán học được mệnh danh là "ngôn ngữ của vũ trụ".

Nguồn : Wikipedia - Bách khoa toàn thư

Tâm sự 8

Lớp 8 - Năm thứ ba ở cấp trung học cơ sở, học tập bắt đầu nặng dần, sang năm lại là năm cuối cấp áp lực lớn dần nhưng các em vẫn phải chú ý sức khỏe nhé!

Nguồn : ADMIN :))

Liên hệ hợp tác hoặc quảng cáo: gmail

Điều khoản dịch vụ

Copyright © 2021 HOCTAPSGK